-
产品详情 >> 消声器系列> 消声器J (LLS-ZP)
-
-
-
产品名称:
中文:通风空调系统消声器 英文:
产品介绍:
在国家通用图集T701-6消声器的基础上,吸收了国内外最新技术而设计的新产品,是国家建筑标准设计图集通用产品。标准号为97T710。适用于各类通风空调系统中的噪声治理,可有效地降低空气动力性噪声。
产品性能:
01.经同济大学声学所测定,消声量为15db以上,压力损失为14-55Pa。
02.采用镀锌钢板制作,咬口拼接。
03.共有49个规格,处理风量范围为720m /h-90000m /n(也可特殊定制)。
04.风量范围大、系列规格全、与标准风管配套好、消声量高、气流阻力小、防火、防潮、防霉、防蛀。
05.可用于广播电视大楼、影剧院、宾馆、写字楼等高层建筑的通风空调系统消声,也可适用于工业企业的通风系统消声。
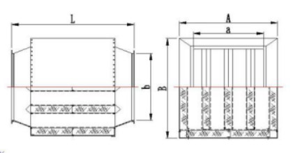
产品示意图:
产品型号:LLS-ZP
产品规格:详表如下

产品备注:
以上规格为常规规格,实际使用产品需根据客户要求进行定制。
-

