适用范围:
该微机综合保护测控装置适用于66KV及以下电力网络,提供对输电线路和变压器、电容器、电动机等主设备保护、控制、测量、监视功能,装置采用单元化设计,使其能方便的配备于一次设备中,即可集中组屏,又可分布式安装,通过规范的现场总线接口,支持多个接点协同工作,实现系统级管理和综合信息共享,该系列微机保护测控装置完全符合此方面的技术和适应对未来发展的要求,是构成变、配电自动化系统的理想基础设备。
电容器保护测控装置
该装置主要适用于66KV以下电压等级,可完成一组电容器的控制、保护、测量、远动通信、故障录波、事件记录等功能。
保护功能:
1、电流速断保护 2、过电流保护 3、不平衡电流保护
4、过压保护 5、欠压保护 6、不平衡电压保护
三遥功能:
1、遥信:10路外部开关量信号输入
2、遥测:4路电压、4路保护电流、3路测量电流、有功、无功、功率因数
3、遥控:断路器遥控分闸、合闸接点输出
通讯功能:
装置具有RS485通讯接口,可以与厂站自动化系统及其它智能设备连接通讯
开孔及外形尺寸
定值参数:
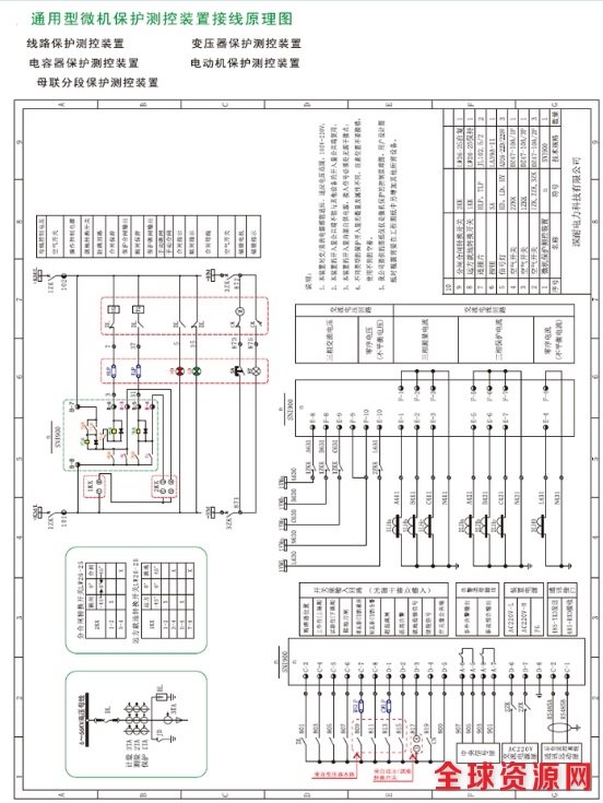
接线示意图:

