电动管夹阀,介绍特点分类使用_上海首龙【TC品牌】
产品型号:GJ941X
产品口径:DN25~DN300mm
产品压力:1.0MPa~1.6MPa
产品材质:铸铁|铝合金、等
GJ941X电动管夹阀简介:
一、电动管夹阀产品特点:
GJ941X电动管夹阀适用内外受酸浸蚀的环境下,保持正常工作。杜绝内泄外漏,方便清槽工作,实践证明,它取代了不锈钢夹子,结束了采用球阀旋塞阀或其它阀门历史。电动管夹阀又名电动夹管阀,电动胶管阀,由电动装置,左右阀体,橡胶管套、大小阀杆、上下闸板、导柱等零件组成。也可按客户要求,采用其他驱动方式如手动、气动等方式,也可按客户需求定制非标产品。
二、电动管夹阀主要零部件材质:
| 名称 | 材料 |
| 阀体 | 铝合金、铸铁 |
| 套管 | 橡胶 |
| 阀杆 | 铸铜、碳钢 |
| 压杆 | 球墨铸铁 |
| 电动头 | 组合件 |
| 托架 | 球墨铸铁 |
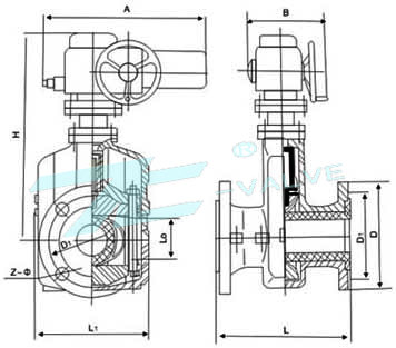
三、电动管夹阀主要外形尺寸:


公称 | 公称 | 工作 | L | L1 | L0 | D | D1 | Z-Φ | H | 电动装置 | |||||
通径 | 压力 | 压力 | 型号 | A | B | D0 | kw | ||||||||
(DN) | (MPa) | (MPa) | |||||||||||||
25 | 0.6 | 0.6 | 160 | 124 | 31 | 115 | 85 | 4-14 | ZA5-14 | 443 | 133 | 0.12 | 18 | ||
32 | 165 | 145 | 40 | *140 | 100 | 4-18 | |||||||||
40 | 190 | 157 | 50 | *150 | 110 | 4-18 | |||||||||
50 | 210 | 160 | 60 | 160 | 125 | 4-18 | ZA10-18 | 552 | 425 | 0.25 | 71 | ||||
65 | 250 | 199 | 74 | 180 | 145 | 4-18 | ZA15-15 | 552 | 425 | 305 | 0.37 | 80 | |||
80 | 300 | 222 | 88 | 195 | 160 | 4-18 | ZA30-18 | 552 | 425 | 305 | 0.75 | 92.9 | |||
100 | 350 | 250 | 106 | 215 | 180 | 8-18 | ZA30-18 | 552 | 425 | 305 | 0.75 | 101 | |||
125 | 430 | 318 | 134 | 245 | 210 | 8-18 | 305 | ||||||||
150 | 500 | 350 | 158 | 280 | 240 | 8-23 | 1000 | ||||||||
200 | 0.4 | 0.4 | 650 | 446 | 206 | 335 | 295 | 8-23 | 1174 | ZA14-18 | 766 | 390 | 305 | 1.1 | 265 |
250 | 800 | 516 | 256 | *395 | 350 | 12-23 | |||||||||
300 | 950 | 562 | 304 | *445 | 400 | 12-23 | |||||||||
采用标准 设计与制造:Q/JBGN02 结构长度:Q/JBGN02 法兰连接尺寸:JB78(PN1.0MPa | |||||||||||||||
欢迎新老客户来电来函。021-61246982 邮箱:famen123@126.com

